Diseño contemporáneo, ubicación estratégica y unidades pensadas para vivir o invertir en una de las mejores zonas de Buenos Aires.
Próximamente
Proyecto
Sobre Av. Álvarez Thomas, este proyecto combina arquitectura contemporánea con un diseño funcional que aprovecha muy bien cada espacio.
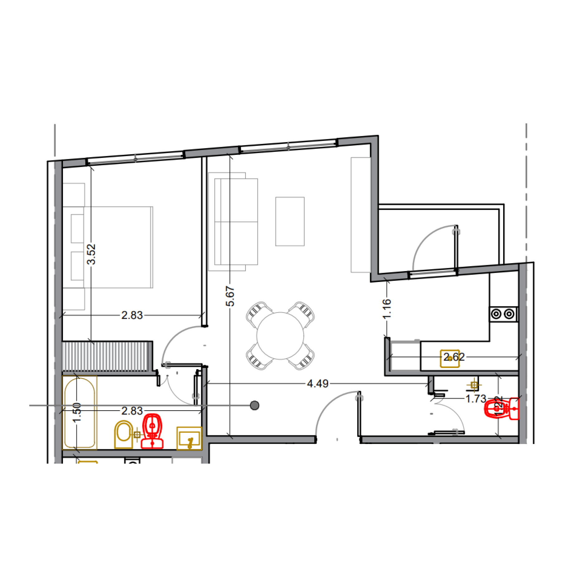
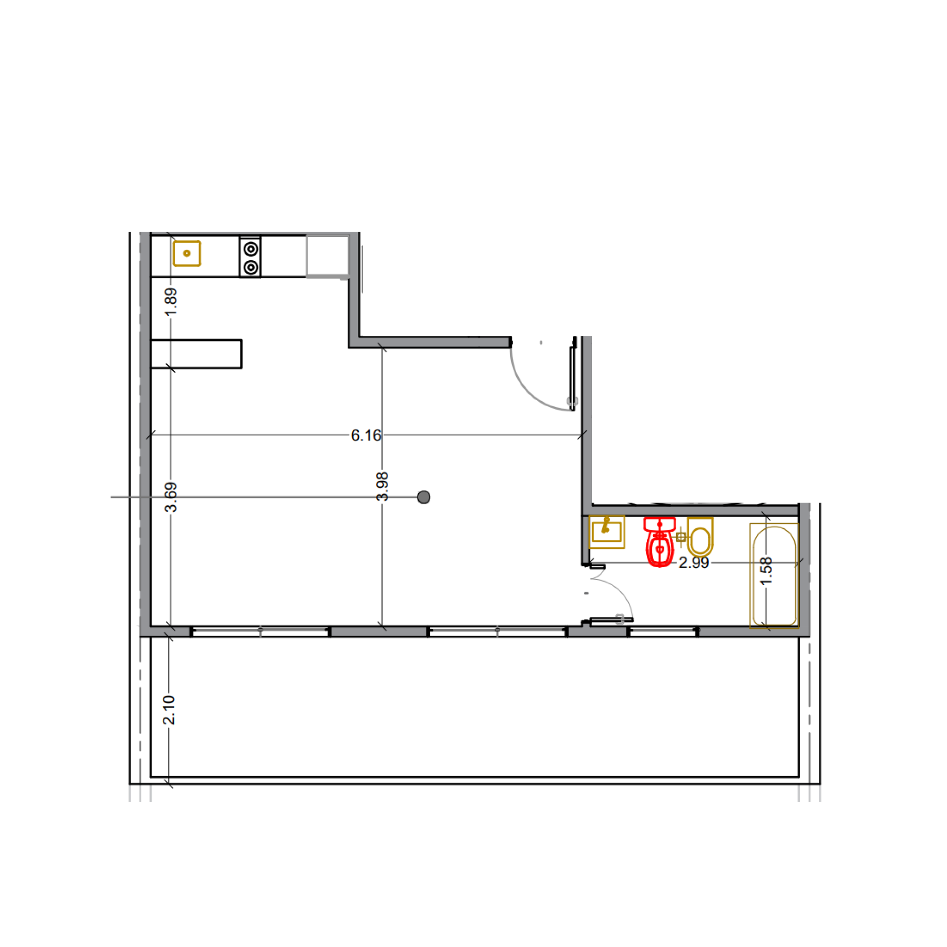
Ofrece unidades de 1 y 2 ambientes, junto con opciones de mayor superficie en los niveles superiores, pensadas tanto para vivir como para invertir.
Además, incorpora local comercial en planta baja y SUM, sumando practicidad y valor al día a día.


Barrio Chacalermo
En Av. Álvarez Thomas, en una zona que conecta Chacarita con Colegiales, con muy buena conectividad y acceso rápido a las principales avenidas.
Un entorno en crecimiento, cada vez más elegido por su equilibrio entre movimiento y vida de barrio, con oferta gastronómica, comercios y todo lo necesario para el día a día.
Una ubicación que combina practicidad y proyección, ideal tanto para vivir como para invertir.
Dirección | Av. Álvarez Thomas 684, Chacarita, CABA
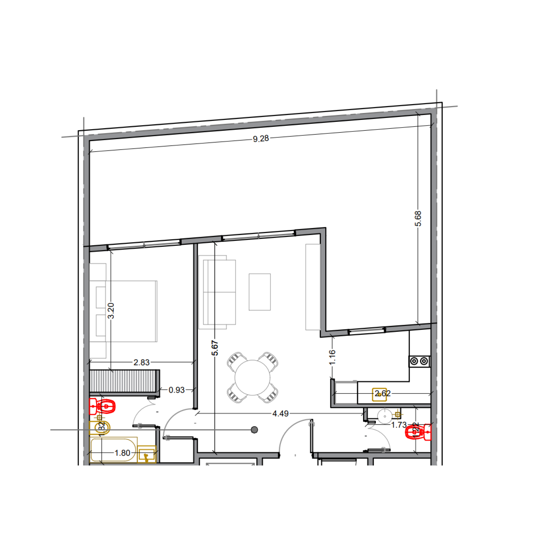
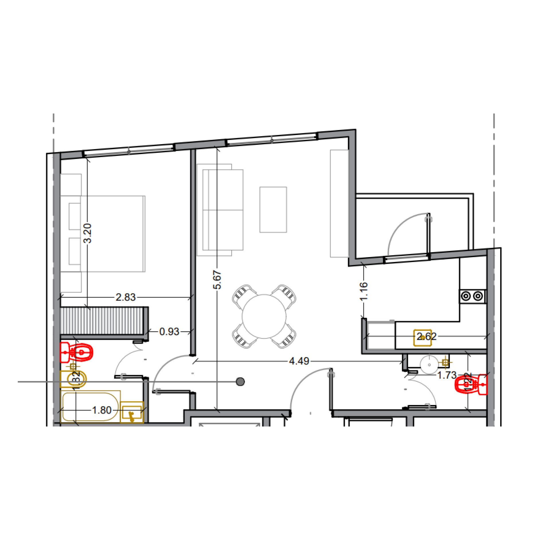
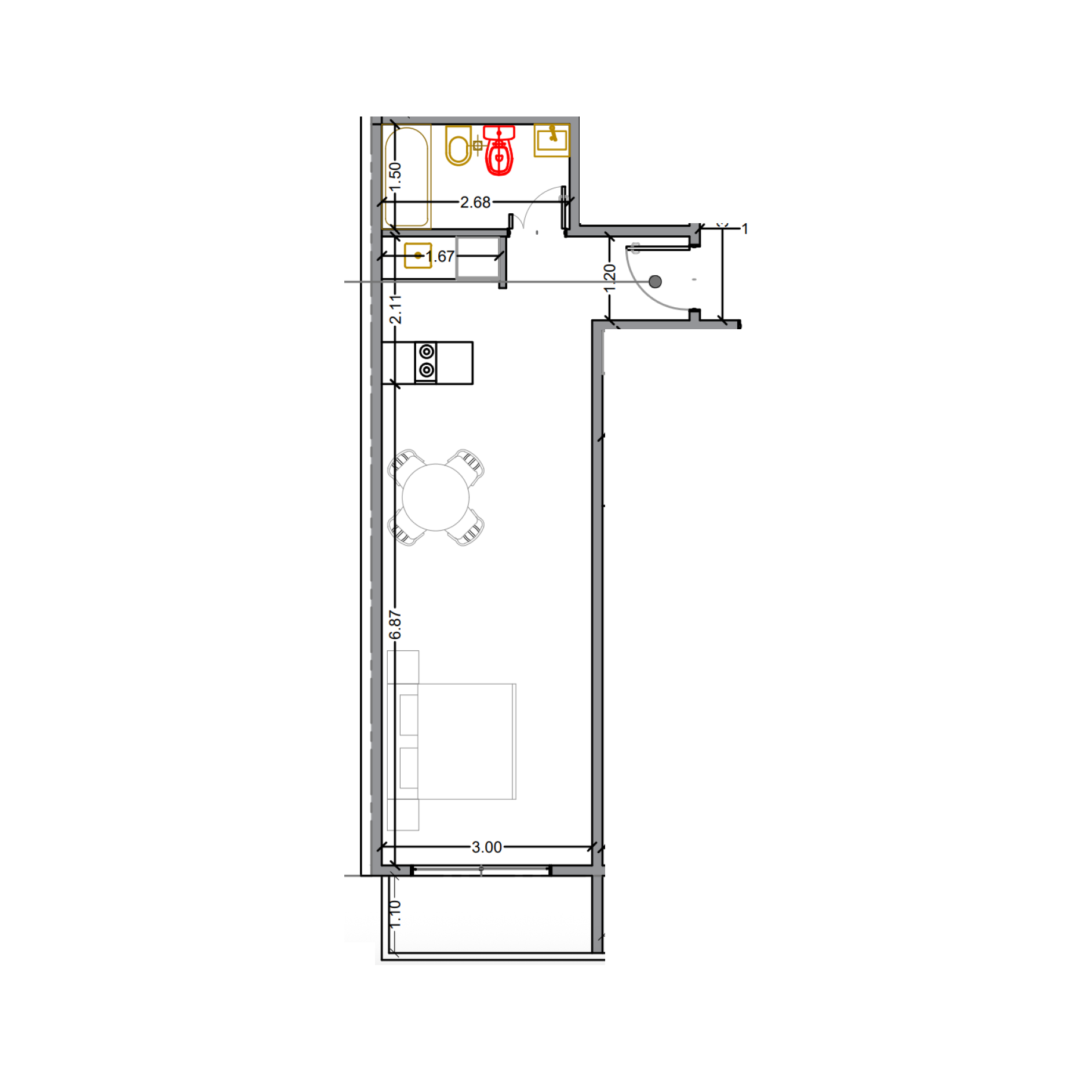
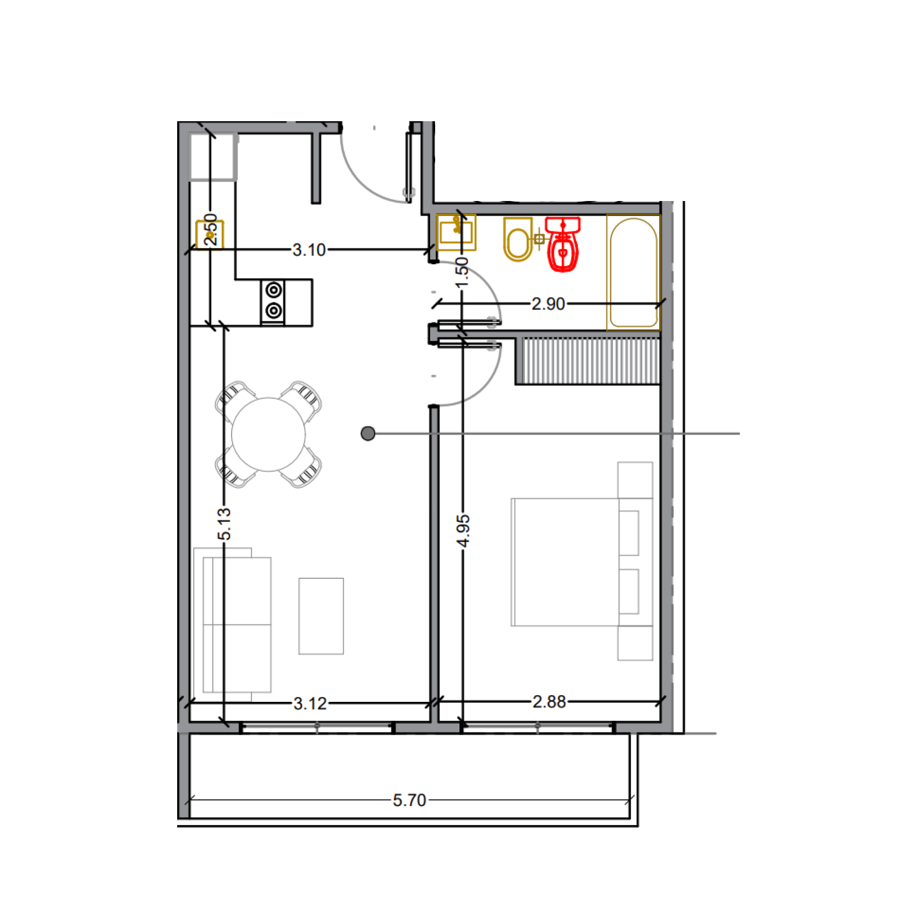
Tipologías | Amenities

Cubierta 49,65m² | Exterior 3,35m² | Total 53m²

Cubierta 49,65m² | Exterior 3,35m² | Total 53m²

Cubierta 34,40m² | Exterior 3,60m² | Total 38m²

Cubierta 45,05m² | Exterior 6,95m² | Total 52m²

Cubierta 49,65m² | Exterior 3,35m² | Total 53m²

Cubierta 65m² | Exterior 29m² | Total 94m²

Cubierta 49,65m² | Exterior 3,35m² | Total 53m²

Cubierta 39,90m² | Exterior 20m² | Total 56,90m²
